国产GV在线观看受被做哭,128tv香蕉128tv视频网,露脸各种姿势啪啪清纯美女,在线观看日本免费一区视频,美美福利导斻一站收录,一本色道久久久888,韩国三级大乳在线观看,2021日本在线观看1区2区

當前位置:
首頁 > 裝修作品 > 案例名稱

122m2 現代簡約風,無限的熱愛是生活

暫時是夫妻二人居住,未來有寶寶后父母會過來幫忙照顧,喜歡現代簡約風格,希望保留三個房間。

0 (24)140.png 

0 (24)142.png 

0 (24)144.png 

戶型優劣勢

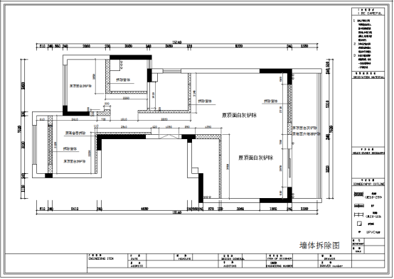
戶型優勢兩個陽臺都比較大,三個房間采光較好。

戶型劣勢進門就是一堵墻,會很壓抑,主臥比較小,儲物空間比較少。

戶型改造將贈送面積擴進兒童房,增加兒童房面積,進門墻體打掉,做對稱鞋柜,中間放玄關柜及裝飾畫,為進門增加亮點。客廳陽臺拿掉移門,主臥陽臺做洗衣區。更改客衛門洞位置,做干濕分離。

0 (24)300.png 

入戶門對面做一排鞋柜,增加進門及過道儲物空間,做進門玄關,增加進門亮點,綠色墻漆給空間增添生機。

0 (24)351.png 

客衛做干濕分離,干區做半高墻體,上面定制長虹玻璃隔斷,增加干區采光。

0 (24)388.png 

 

冰箱嵌進餐廳儲物柜內,為廚房空出活動空間,廚房臺面較少,女業主準備將自己的小烤箱放在餐廳儲物柜上,拿取更方便。

0 (24)447.png 

0 (24)449.png 

主臥門和電視背景墻一起定制做隱形門,客廳背景更顯簡約大氣??蛷d陽臺與主臥陽臺預留門洞,父母去洗衣陽臺也不必經過主臥。

0 (24)510.png 

0 (24)512.png 

放置一個簡約三人沙發搭配一個休閑椅,兩幅裝飾畫靠邊擺放,尋求裝飾上的個性,一盆綠植,為整個空間增添生機。

 

 

0 (24)569.png 

主臥衛生間改小,去掉淋浴房功能,做了步入式衣帽間,增加主臥儲物空間。


吳鵬飛設計總監 更多作品

從業年限:8

設計報價:600

擅長風格:現代、北歐、簡歐、美式、新中式、loft

擅長戶型:不限

工作經歷:經驗8年等等

更多作品

免費咨詢裝修報價

免費量房
在線咨詢
預約電話
15221915785
掃一掃

掃一掃
關注公眾號

返回頂部
国产GV在线观看受被做哭,128tv香蕉128tv视频网,露脸各种姿势啪啪清纯美女,在线观看日本免费一区视频,美美福利导斻一站收录,一本色道久久久888,韩国三级大乳在线观看,2021日本在线观看1区2区