⊙業主需求丨Owner demand ·業主喜歡現代極簡風格,無主燈設計 ·要滿足餐廳客廳電視柜展示柜保證空間的利用率上還要通過改造滿足原始戶型帶來的不便。 ·廚房空間不大我們要考慮到廚房的大功率電器比如冰箱等操作臺面和電器類儲藏空間 ·客戶一個人居住,父母偶爾來居住一下,保留二房空間,客戶傾向無主燈設計利用筒燈射燈等元素提升室內光源
⊙設計方案丨devise a scheme

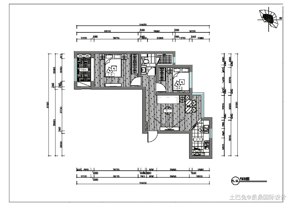
(原始平面圖)

(改造后平面圖)
★戶型劣勢:
1.在不改造空間情況下陽臺比較浪費,客廳比較小整體空間沒有聯通衛生間
2.淋浴區只有一小長條空間比較浪費
3.進門見衛生間門通過利用隱形門的方式去避免
4.沒有餐廳位置只有客廳區域并且客廳通風效果不佳,陽臺空間小把陽臺跟客戶空間隔離導致空間利用率不佳
☆戶型優勢:
1.戶型前后并無房子遮擋風景很好,整體采光通風通過硬裝改造將窗外引入室內
2.二個房間南北通透采光好
3.陽臺跟主臥連接擴大進門視覺
√戶型改造:
將陽臺墻體拆除把客餐廳陽臺一體化
利用臥室陽臺區域做成榻榻米書架書桌儲物于一體增加了房間儲物

客廳整體為淺灰色配上暖色燈光讓空間更加舒適,家具突出強調功能性設計,設計線條簡約流暢,家具色彩對比強烈,這是現代風格家具的特點。

視覺上簡單的黑白、簡單的裝飾、簡單的搭配造就出簡單的空間設計。黑白的空間設計看似簡單的設計與搭配,卻體現了不同的空間效果,這就是現代簡約裝修的特點。


以簡潔明快的設計風格為主調,簡潔和實用是現代簡約風格的基本特點。餐廳是家居生活的,不僅體現了美觀,更體現了的實用性,整體性。

簡約風格不僅注重居室的實用性,而且還體現出了現代社會生活的精致與個性,符合現代人的生活品位。

形式簡潔現代簡約風格廚房主要的特點是形式上的簡潔,表現方式為簡單直線的設計,橫平豎直,沒有不必要的裝飾線條,用直線強調空間感。直線型設計給人舒適、清爽的感受,使得下班后的主人身心舒暢,減輕疲勞。


以淺灰色為主色調配上原木色讓整個空間高級卻不失溫暖,現代簡約臥室的優點 現代簡約風格,顧名思義,就是讓的細節看上去都是簡潔的。裝修中極簡便是讓空間看上去簡潔,大氣。裝飾的部位要少,但是在顏色和布局上。


強調功能性設計,線條簡約流暢,色彩對比強烈,這是現代衛生間的特點。能給人帶來前衛、不受拘束的感覺。由于線條簡單、裝飾元素少,才能顯示出美感。