這是一套建面140m2的三室兩廳,業主是一位單身男性,目前是一個人住;希望保留原始的布局,同時要優化,讓使用更合理、舒適;整體風格定為現代極簡無主燈,完工效果看起來寬敞大氣,白色為主讓空間看起來明亮通透,木地板的搭配增添了空間的溫馨感~

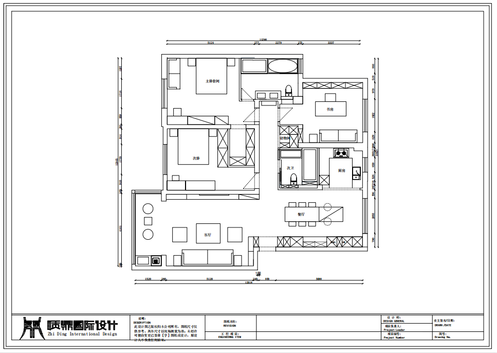
原戶型比較方正,部分墻體設計不合理,我們需要將其完善,讓空間更合理,保證空間的秘密性,同時擁有充足的收納空間。

整體在原戶型的基礎上做了些微的改動,業主對主衛的使用率較高,將主衛的空間擴大,功能也更齊全。將原次臥門的位置移動到另一邊,再借助次臥的位置為主臥增加了一個衣帽間。
原過道比較寬敞,書房和客衛的墻體往外擴了,增添了一個儲物間。客衛一分為二,增加了廚房的位置,讓客餐廳寬敞又通透。

進門即是客餐廳空間,入戶門廳處打造了個玄關柜,方便收納鞋子包包等出門必備物品。

白色的主色調搭配了淺木色的地板,地板人字形鋪貼使空間看起來寬敞,且不失溫馨感。

陽臺與客廳一體化,開闊空間,讓室內擁有充足的自然光。

當早晨的第一縷陽光照進屋內,整個家里突然變得生機有活力。

背景墻沒有多余的裝飾,燈帶和射燈的效果帶來時尚與溫馨感。



客餐廳在同一軸線上,視野寬闊,空間通透。

餐廳區域增加了一整面的儲物柜,中間一部分開放展示柜,滿足了日常生活中最頻繁、最實用的區域的收納工作。

一套簡易又時尚的餐桌椅,具有獨特的審美。打造了清新淡雅的格調,搭配出輕松愉悅的用餐環境。

廚房做U型櫥柜,充足的收納空間與操作空間,簡約的風格和色調看起來更舒適。

臥室仍然延續主體的色彩及風格,極簡的搭配看起來溫馨又干凈。

背景墻燈帶和床頭燈可以二選一打開,提升氛圍感;背景墻刷白,將極簡發揮到淋漓盡致。

客衛干濕分離,時尚感爆棚。細條的淋浴房門框搭配在小面積的衛生間里,有拉伸視覺的效果。