本案是一套地下兩層,地上兩層的聯排別墅;客戶訴求是滿足自己對空間功能的需求,喜歡比較現代的風格,簡約大氣有質感。

負一樓做了一個茶室,家庭聚會好空間。

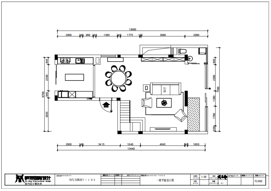
一樓作公共活動區域,全家人日常活動空間,客餐廳功能充足。

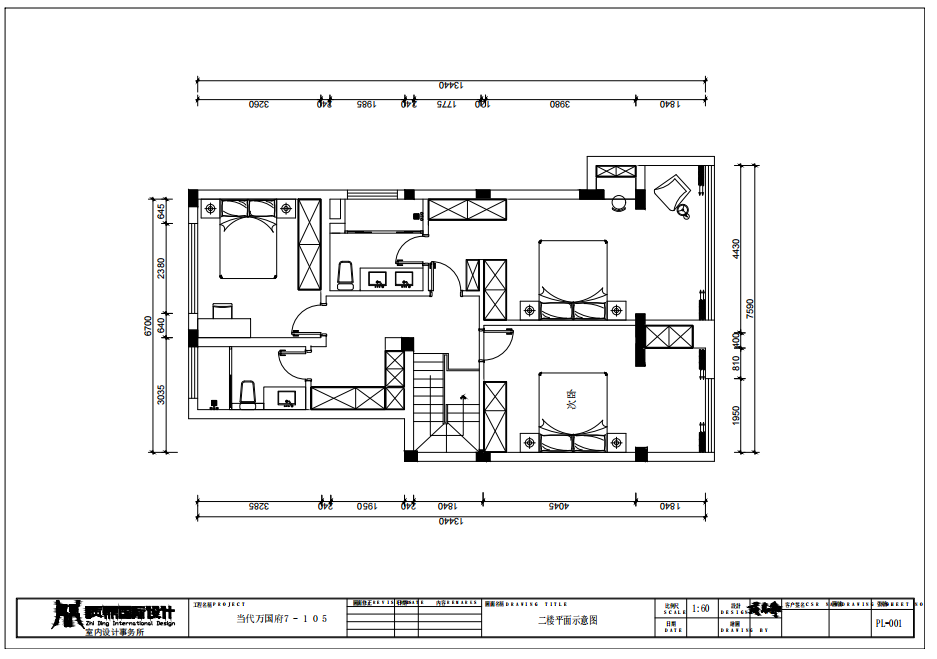
二樓為休息區,設有三間臥室,一間主臥帶兩間臥室;一家人在一個樓層,相互有照應。




一樓主做公共活動空間,設有客廳、餐廳、廚房等,簡約大氣的風格設計,干凈簡潔的空間給人舒適的感覺~

餐廳搭配一套圓形餐桌,有大家風范的感覺;每一處設計都是簡約而不簡單,一切都是剛剛好~

廚房空間很寬敞,里面打造雙1型的櫥柜,中間一個中島臺,操作方便。

所有的廚房設備應有盡有,嵌入式的廚電便于方便,使廚房更顯得整潔大氣。原木色的櫥柜提供空曠的溫馨感~

主臥空間比其他房間空間一些,里面功能也更齊全,陽臺與臥室也是貫通的,擺放一套休閑桌椅,閑暇時光曬曬太陽,品品茶,看看書,遠離喧囂,享受愜意~



衛生間干濕分離,潔凈的空間搭配,整體感覺時尚又大氣,簡約又干凈~




地下二樓做了一個圖書室,工作、學習空間,與朋友、工作伙伴交流時,不受外界打擾,私密性強!


樓梯的設計不僅是啟上承下,也是空間精美的藝術,流暢的曲線勾勒出美感~


在地下一樓做了一個茶室,與親人、好友相聚時,品品茶,談談天,說說地~